スタッフブログ
STAFF BLOG
NEW!
2026.1.8
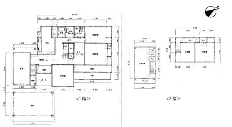
中古住宅 勝山市郡町一丁目 新規販売開始!!
中古住宅 NEW!

★ 勝山市郡町一丁目 ★
新規販売開始いたします!
リフォーム済物件!
1F寝室、カーポート有物件!
(学区:村岡小学校・勝山中部中学校)


奥越エリアで新居を考えられている方は
ぜひ一度下記のリンク先から物件をチェックしてみてください!
最新の土地情報については、エーシン事務所にてお話できます。
お気軽にお越しください!
★土地・家づくりのお問い合わせ・ご相談はこちら!
※感染症予防・拡大防止対策を講じたうえでご案内させていただきます。安心してご相談ください。
他エリア(福井市東郷、鯖江市上鯖江、坂井市春江町…など)も好評分譲中!
★その他エリアの分譲地 物件の詳細はこちら!