スタッフブログ
STAFF BLOG
分譲情報
NEW!
2026.2.22
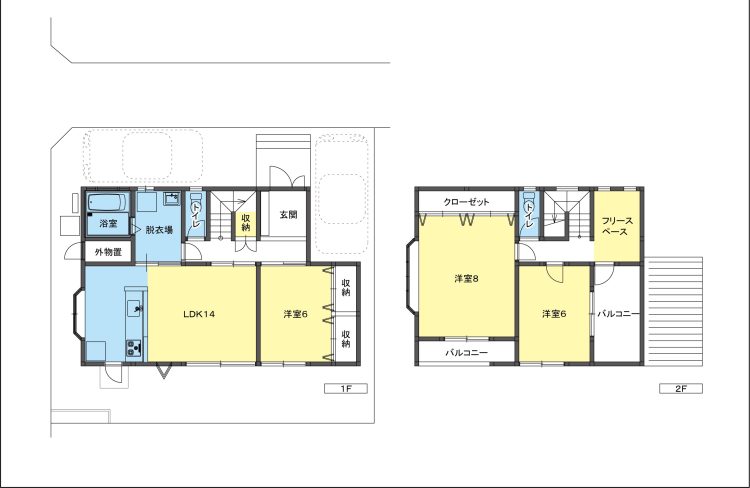
中古住宅 福井市渕一丁目 新規販売開始!!
中古住宅 NEW!

★ 福井市渕一丁目 ★
新規販売開始いたします!
北西角地!
リフォーム済み物件!
(学区:社南小学校・至民中学校)


福井市内で新居を考えられている方は
ぜひ一度下記のリンク先から物件をチェックしてみてください!
最新の土地情報については、エーシン事務所にてお話できます。
お気軽にお越しください!
★土地・家づくりのお問い合わせ・ご相談はこちら!
※感染症予防・拡大防止対策を講じたうえでご案内させていただきます。安心してご相談ください。
他エリア(福井市東郷、鯖江市上鯖江、坂井市春江町中筋北浦…など)も好評分譲中!
★その他エリアの分譲地 物件の詳細はこちら!