株式会社エーシン 株式会社エーシン

福井の土地・不動産・分譲住宅・中古住宅・賃貸物件

LAND・SUBDIVISION

中古住宅

【リフォーム済み】勝山市郡町一丁目 中古住宅 

1F寝室、カーポート有物件!

玄関

1F和室

縁側

トイレ

浴室

玄関ホール

2F和室

物件が見つからない方はこちら

エーシンの物件リクエスト

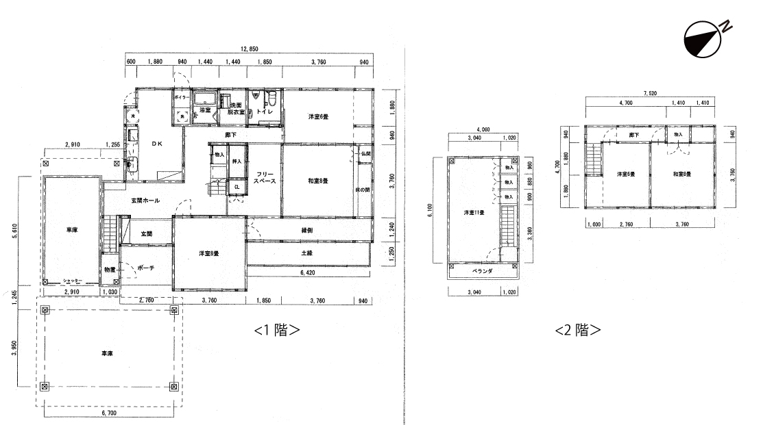
間取り

物件情報・特徴

物件情報

販売価格

700万円

間取り6DK+車庫
土地面積405.16㎡(122.56坪)
建物面積170.20㎡(51.48坪)
仲介手数料297,000円
学校区村岡小学校
勝山中部中学校

物件特徴

ワイド間口 ワイド間口
ワイド間口 ワイド間口
小中学校至近 小中学校至近
小中学校至近 小中学校至近
カーポート有 カーポート有
カーポート有 カーポート有
収納多数 収納多数
収納多数 収納多数
小学校徒歩圏内 小学校徒歩圏内
小学校徒歩圏内 小学校
徒歩圏内

地図・周辺環境

勝山市郡町一丁目280番地
Google mapで見る
教育機関

村岡小学校 950m(徒歩12分)

勝山中部中学校 450m(徒歩6分)

物件概要

  • 所在地 勝山市郡町一丁目280番1、281番1
  • 地積 405.16m² (122.56坪)
  • 地目 宅地
  • 間口 北側 約16.33m
    東側 約19.96m
  • 奥行 約25.0m
  • 道路状況 北側幅員 7.6m
    東側幅員 16m
  • 都市計画 未線引き区域
  • 用途地域 準工業地域
  • 防火地域 法22条区域
  • 建ぺい率 60%
  • 容積率 200%
  • 所在地 勝山市郡町一丁目280番地
  • 建物構造 木造瓦葺+コンクリート・鉄骨造
  • 階建 2階建
  • 延床 170.20㎡(51.48坪)
  • 築年月 1972年新築、1984年増築
  • 間取り 6DK+車庫
  • 学校区 村岡小学校、勝山中部中学校
  • 設備 カーポート
  • 物件種目 中古住宅
  • 取引態様 仲介
  • 仲介手数料 297,000円

※更新日 2026年1月12日

物件が見つからない方はこちら

エーシンの物件リクエスト
資料請求・内覧予約はこちら
お電話からの方はこちら ※当日参加希望の方はお電話ください
0776-52-0005[ 9:00~17:00 ] 定休日:水曜
タップして電話する
この物件を資料請求・内覧予約
フォームでお問い合わせ

RESERVATION

内容入力

Leave this empty:

必須ご希望の物件

【リフォーム済み】勝山市郡町一丁目 中古住宅 

必須項目

ご希望日時

必須 第1希望
日付
時間
任意 第2希望
日付
時間

必須お名前

例:山田 太郎

必須フリガナ

例:ヤマダ タロウ

任意郵便番号

例:1234567

※住所が自動で
入力されます

任意ご住所

例:〇〇県〇〇市〇〇123−12

必須電話番号

例:00000000000

必須メールアドレス

例:sample123@sample.jp

任意お問い合わせ内容

必須何をご覧になって
ご予約・資料請求
されましたか?

※紹介者のお名前(任意入力)

任意その他ご要望

【個人情報の取扱いについて】

  • 今回、お送り頂いたお客様の個人情報につきましては、お問合せに対する回答のご連絡以外で利用することはございません。
    株式会社エーシンの個人情報のお取り扱いについてはこちら

上記フォームで送信できない場合は、必要項目をご記入のうえ、info@eshin-eshin.co.jpまでメールをお送りください。