株式会社エーシン 株式会社エーシン

福井の土地・不動産・分譲住宅・中古住宅・賃貸物件

【築8年】福井市新田塚2丁目 築浅中古住宅 

人気の明新小学校区に築浅の物件が登場!

周辺環境Location

教育施設

明新小学校  1,200m|徒歩15分

藤島中学校  1400m|徒歩18分

福井市新田塚二丁目114番35号3
Googleマップを見る

物件概要Outline

物件情報

販売価格

2,900万円

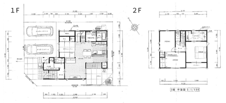
間取り3LDK
土地面積161.68㎡(48.90坪)
建物面積114.43㎡(34.61坪))
仲介手数料1,023,000円(税込み)
学校区明新小学校
藤島中学校

物件特徴

ワイド間口 ワイド間口
ワイド間口 ワイド間口
交通アクセス良好<br>(車/電車) 交通アクセス良好<br>(車/電車)
交通アクセス良好
(車/電車)
交通アクセス
良好(車/電車)
築浅物件 築浅物件
築浅物件 築浅物件
カーポート有 カーポート有
カーポート有 カーポート有
トイレ2ケ所 トイレ2ケ所
トイレ2ケ所 トイレ2ケ所
収納多数 収納多数
収納多数 収納多数
エコキュート有 エコキュート有
エコキュート有 エコキュート有
エアコン付 エアコン付
エアコン付 エアコン付
小学校徒歩圏内 小学校徒歩圏内
小学校徒歩圏内 小学校
徒歩圏内
買い物施設充実 買い物施設充実
買い物施設充実 買い物施設
充実
  • 所在地 福井市新田塚二丁目114番35号3
  • 地積 161.68m² (48.90坪)
  • 地目 宅地
  • 間口 西側 約8.64m
    南側 約13.08m
  • 奥行 約10.79m~15.18m
  • 道路状況 西側幅員 6.0m
    南側幅員 6.0m
  • 都市計画 市街化区域
  • 用途地域 第一種低層住居地域
  • その他制限 法22条区域
  • 建ぺい率 70%
  • 容積率 100%
  • 所在地 福井市新田塚二丁目114番地35号3
  • 建物構造 木造合金メッキ鋼板葺き2階建
  • 階建 二階建
  • 延床 114.43㎡(34.61坪)
  • 1階 65.58㎡
  • 2階 48.85m²
  • 築年月 2017年3月
  • 間取り 3LDK
  • 学校区 明新小学校、藤島中学校
  • 設備 エコキュート、IHクッキングヒーター、カーポート
  • 物件種目 中古住宅
  • 取引態様 仲介
  • 仲介手数料 1,023,000円(税込み)

※更新日 2026年2月2日

エーシンの分譲地 だからできること
01
01

福井で圧倒的な情報量!

地域に根差した
土地ネットワーク力

30年以上の経験で積み重ねた福井県内の不動産ネットワークを駆使し、優良な土地情報をいち早く取得・厳選。
『自社土地保有数 福井No.1』の実績で、他には出回らない特別な物件と出会えるチャンスをご提供します。

02
02

快適で安心が続く

考え抜かれた街並み設計

区画全体を一つの街として捉え、美しい景観とご家族のプライバシーに配慮した配置計画を行っています。
整備された道路や統一感のある外構仕様など、快適な生活を実現する機能性の高い街づくりを追求しています。

03
03

自然と交流が生まれる

良好なコミュニティ

平均70坪のゆとりある区画設定と統一感のある街づくりで、住民同士が心地よく繋がる土台づくりをしています。
また、ご入居時の生活サポートを通じて、スムーズで良好なコミュニティ形成を応援します。

04
04

土地の特性を活かす

「ワンストップ」の
家づくり

土地の特性を深く理解したうえで、お客様の希望に最適な住宅プランをご提案。
理想の土地と家づくりを、1社完結で手間なくスムーズにサポートします。

05
05

費用面で不安がない

分かりやすい価格設定

売主物件中心の取り扱いのため基本的に仲介手数料はゼロ。
また、原則宅地造成時にライフライン(電気・上下水道)の整備を完了させており、建築の際に余計な工事費が増える心配がありません。

物件が見つからない方はこちら

エーシンの物件リクエスト
資料請求・内覧予約はこちら
お電話からの方はこちら ※当日参加希望の方はお電話ください
0776-52-0005[ 9:00~17:00 ] 定休日:水曜
タップして電話する
この物件を資料請求・内覧予約
フォームでお問い合わせ

RESERVATION

内容入力

Leave this empty:

必須ご希望の物件

【築8年】福井市新田塚2丁目 築浅中古住宅 

必須項目

ご希望日時

必須 第1希望
日付
時間
任意 第2希望
日付
時間

必須お名前

例:山田 太郎

必須フリガナ

例:ヤマダ タロウ

任意郵便番号

例:1234567

※住所が自動で
入力されます

任意ご住所

例:〇〇県〇〇市〇〇123−12

必須電話番号

例:00000000000

必須メールアドレス

例:sample123@sample.jp

任意お問い合わせ内容

必須何をご覧になって
ご予約・資料請求
されましたか?

※紹介者のお名前(任意入力)

任意その他ご要望

【個人情報の取扱いについて】

  • 今回、お送り頂いたお客様の個人情報につきましては、お問合せに対する回答のご連絡以外で利用することはございません。
    株式会社エーシンの個人情報のお取り扱いについてはこちら

上記フォームで送信できない場合は、必要項目をご記入のうえ、info@eshin-eshin.co.jpまでメールをお送りください。